Construction Maison + Terrain – Saint-Julien-l’Ars
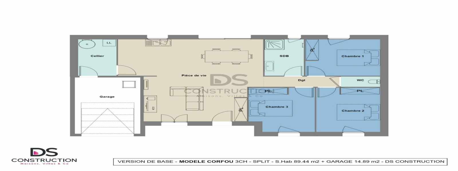
Découvrez le modèle Corfou de 89 m² qui est conçu pour offrir confort et élégance avec ses trois chambres, une salle de bains bien aménagée, et une cuisine ouverte sur un spacieux séjour.
La pièce de vie, traversante et lumineuse, est baignée de lumière grâce à une grande baie vitrée et une porte-fenêtre à deux battants sur la façade avant, créant une ambiance chaleureuse et accueillante.
Le modèle Corfou comprend également un cellier pratique pour le rangement et un garage de 15 m². Les décrochements au niveau des chambres et du garage ajoutent du charme à la maison en créant un long porche à l’entrée, offrant un aspect esthétique distinctif et une entrée accueillante.
Personnalisez et configurez cette maison, selon vos envies et besoins. N’hésitez pas à faire une demande de renseignements pour votre projet de vie.
Prix total se décomposant entre prix terrain et prix de construction, communiqué a titre indicatif et susceptible de modifications. Prix comprenant une maison aux normes RE2020 (classe énergétiques A), Construction sur vide sanitaire, Menuiserie blanches, Pompes à chaleur réversibles et chauffe-eau thermodynamique.
Le prix ne comprend pas, Adaptations au sol, Peintures, Décorations, Aménagements intérieures, Revêtements de sols des chambres, Cuisines, Aménagements extérieures, Frais de dossier et assurances en cas de recours à un prêt, Taxe d’aménagement et participations d’urbanisme, Frais d’abonnement aux réseaux et Taxes afférentes, Frais notariés, Etudes de sol, Raccordements et VRD. 
La société DS Construction s’efforce d’assurer une mise à jour régulière de ses annonces. Elle ne peut cependant être tenue pour responsable d’un éventuel défaut de mise à jour de ces annonces. Visuels non contractuels.
Simulation gratuite
Découvrez combien vous pouvez emprunter pour réaliser votre maison sur-mesure.
En quelques clics, obtenez une estimation de vos mensualités et de votre capacité d’emprunt pour concrétiser votre projet de construction.
Commencez votre simulation dès maintenant !
Agence de Poitiers
Vous aimerez aussi
 
				 
				 
				 
		 
						 
						 
						