• ea0c66822c5752773f9e629c5c3d9c4d.jpg
  • ebcc7dbffe3265912f8b6393f58cbb08.jpg
  • e6daf3fcdb61decea727d46f325a161e.jpg
  • 4f7cabe27bce9316d115cc386fb43be3.jpg
4
107 m² Terrain de 1000 m² 6 pièces 4 chambres 1 sdb / sde

Construction Maison + Terrain – Chenevelles

168 590 €
Référence : Chenevelles 2

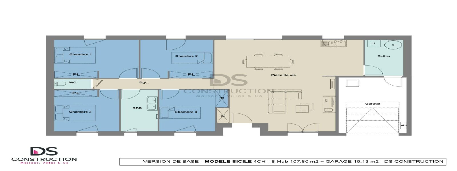
Découvrez le modèle Sicile, une maison moderne et spacieuse de 108 m² au design rectangulaire, qui se distingue par un élégant renfoncement d’environ 1 mètre sur 2 mètres à l'entrée.

À l'intérieur, le modèle Sicile vous propose trois chambres confortables. La pièce de vie traversante est inondée de lumière naturelle grâce à une baie vitrée d'un côté et une porte-fenêtre de l'autre.

La cuisine ouverte, intégrée au séjour, favorise une ambiance conviviale et fluide, idéale pour les repas en famille ou les soirées entre amis. Un cellier adjacent ajoute un espace de rangement pratique.

Le modèle Sicile comprend également un garage de 15 m², offrant un espace sécurisé pour votre véhicule ou pour du rangement supplémentaire. Le renfoncement à l'entrée, avec ses dimensions soigneusement conçues, ajoute une touche de sophistication au design de la maison.

Personnalisez et configurez cette maison, selon vos envies et besoins. N’hésitez pas à faire une demande de renseignements pour votre projet de vie.
Prix total se décomposant entre prix terrain et prix de construction, communiqué a titre indicatif et susceptible de modifications. Prix comprenant une maison aux normes RE2020 (classe énergétiques A), Construction sur vide sanitaire, Menuiserie blanches, Pompes à chaleur réversibles et chauffe-eau thermodynamique.
Le prix ne comprend pas, Adaptations au sol, Peintures, Décorations, Aménagements intérieures, Revêtements de sols des chambres, Cuisines, Aménagements extérieures, Frais de dossier et assurances en cas de recours à un prêt, Taxe d’aménagement et participations d’urbanisme, Frais d’abonnement aux réseaux et Taxes afférentes, Frais notariés, Etudes de sol, Raccordements et VRD.
La société DS Construction s’efforce d’assurer une mise à jour régulière de ses annonces. Elle ne peut cependant être tenue pour responsable d’un éventuel défaut de mise à jour de ces annonces. Visuels non contractuels.

Simulation gratuite

Découvrez combien vous pouvez emprunter pour réaliser votre maison sur-mesure.

En quelques clics, obtenez une estimation de vos mensualités et de votre capacité d’emprunt pour concrétiser votre projet de construction.

Commencez votre simulation dès maintenant !

Maison à construire 86450 Chenevelles

Agence de Poitiers

05.86.16.05.86 1 rue du Hameau de Chaumont - 86000 Poitiers

Vous aimerez aussi