Construction Maison + Terrain – Marigny Brizay
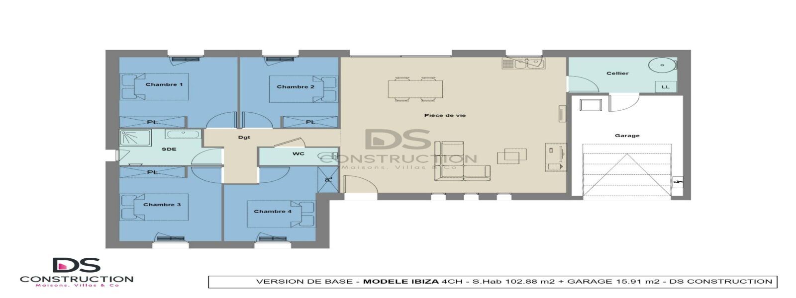
Découvrez le modèle Ibiza de 102 m² qui allie style contemporain et agencement optimisé pour offrir un cadre de vie lumineux et confortable. Avec ses quatre chambres, cette maison est idéale pour une famille recherchant un espace bien conçu.
Le séjour, vaste et lumineux, bénéficie d'une grande baie vitrée qui laisse entrer généreusement la lumière naturelle. En face, trois châssis fixes de 40 cm assurent une lumière traversante dans la pièce de vie.
La cuisine ouverte sur le séjour favorise un esprit convivial et moderne. Un cellier, attenant à la cuisine, offre un espace de rangement supplémentaire.
Un décroché au niveau des chambres confère à ce modèle un design unique et élégant, qui se distingue par une façade dynamique et originale.
Le modèle Ibiza inclut également un garage de 16 m², apportant un espace pratique pour le stationnement et le rangement.
Personnalisez et configurez cette maison, selon vos envies et besoins. N’hésitez pas à faire une demande de renseignements pour votre projet de vie.
Prix total se décomposant entre prix terrain et prix de construction, communiqué a titre indicatif et susceptible de modifications. Prix comprenant une maison aux normes RE2020 (classe énergétiques A), Construction sur vide sanitaire, Menuiserie blanches, Pompes à chaleur réversibles et chauffe-eau thermodynamique.
Le prix ne comprend pas, Adaptations au sol, Peintures, Décorations, Aménagements intérieures, Revêtements de sols des chambres, Cuisines, Aménagements extérieures, Frais de dossier et assurances en cas de recours à un prêt, Taxe d’aménagement et participations d’urbanisme, Frais d’abonnement aux réseaux et Taxes afférentes, Frais notariés, Etudes de sol, Raccordements et VRD. 
La société DS Construction s’efforce d’assurer une mise à jour régulière de ses annonces. Elle ne peut cependant être tenue pour responsable d’un éventuel défaut de mise à jour de ces annonces. Visuels non contractuels.
Simulation gratuite
Découvrez combien vous pouvez emprunter pour réaliser votre maison sur-mesure.
En quelques clics, obtenez une estimation de vos mensualités et de votre capacité d’emprunt pour concrétiser votre projet de construction.
Commencez votre simulation dès maintenant !
Notice: Array to string conversion in /var/www/ds-construction86/wp-content/plugins/timber-library/vendor/twig/twig/src/Environment.php(497) : eval()'d code on line 70
Array
Notice: Array to string conversion in /var/www/ds-construction86/wp-content/plugins/timber-library/vendor/twig/twig/src/Environment.php(497) : eval()'d code on line 79
Array
Agence de Poitiers
Vous aimerez aussi
 
				 
				 
				 
		 
						 
						 
						