Construction Maison + Terrain – Dissay
Découvrez le modèle Bahamas de 113 m² à étage qui s’adapte aussi bien aux terrains étroits qu’aux parcelles plus larges, tout en maximisant l’espace et le confort. Avec sa façade de 9 mètres, cette maison est pensée pour optimiser l’agencement, peu importe la configuration de votre terrain.
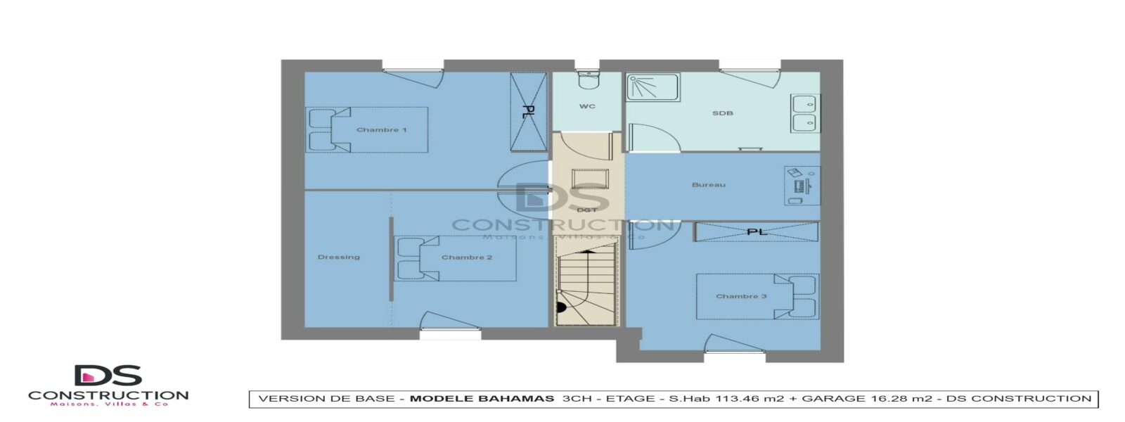
L’étage est dédié à la partie nuit, avec trois chambres spacieuses et une salle de bains, créant un espace de repos bien séparé des pièces de vie. Cette disposition permet de préserver l’intimité tout en offrant une organisation fonctionnelle.
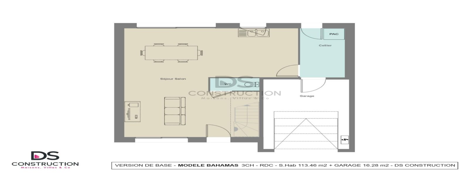
Au rez-de-chaussée, la cuisine ouverte se prolonge sur un séjour lumineux, créant un espace convivial et accueillant pour vos moments en famille ou entre amis. Un cellier pratique, attenant à la cuisine, facilite le rangement au quotidien.
Le modèle Bahamas comprend également un garage de 16 m².
Que votre terrain soit étroit ou non, cette maison allie modernité, confort et optimisation de l’espace pour répondre à vos besoins de manière efficace et élégante.
Personnalisez et configurez cette maison, selon vos envies et besoins. N’hésitez pas à faire une demande de renseignements pour votre projet de vie.
Prix total se décomposant entre prix terrain et prix de construction, communiqué a titre indicatif et susceptible de modifications. Prix comprenant une maison aux normes RE2020 (classe énergétiques A), Construction sur vide sanitaire, Menuiserie blanches, Pompes à chaleur réversibles et chauffe-eau thermodynamique.
Le prix ne comprend pas, Adaptations au sol, Peintures, Décorations, Aménagements intérieures, Revêtements de sols des chambres, Cuisines, Aménagements extérieures, Frais de dossier et assurances en cas de recours à un prêt, Taxe d’aménagement et participations d’urbanisme, Frais d’abonnement aux réseaux et Taxes afférentes, Frais notariés, Etudes de sol, Raccordements et VRD. 
La société DS Construction s’efforce d’assurer une mise à jour régulière de ses annonces. Elle ne peut cependant être tenue pour responsable d’un éve
Simulation gratuite
Découvrez combien vous pouvez emprunter pour réaliser votre maison sur-mesure.
En quelques clics, obtenez une estimation de vos mensualités et de votre capacité d’emprunt pour concrétiser votre projet de construction.
Commencez votre simulation dès maintenant !
Notice: Array to string conversion in /var/www/ds-construction86/wp-content/plugins/timber-library/vendor/twig/twig/src/Environment.php(497) : eval()'d code on line 70
Array
Notice: Array to string conversion in /var/www/ds-construction86/wp-content/plugins/timber-library/vendor/twig/twig/src/Environment.php(497) : eval()'d code on line 79
Array
Agence de Poitiers
Vous aimerez aussi
 
				 
				 
				 
		 
						 
						 
						 
						 
						