Construction Maison + Terrain – Buxerolles
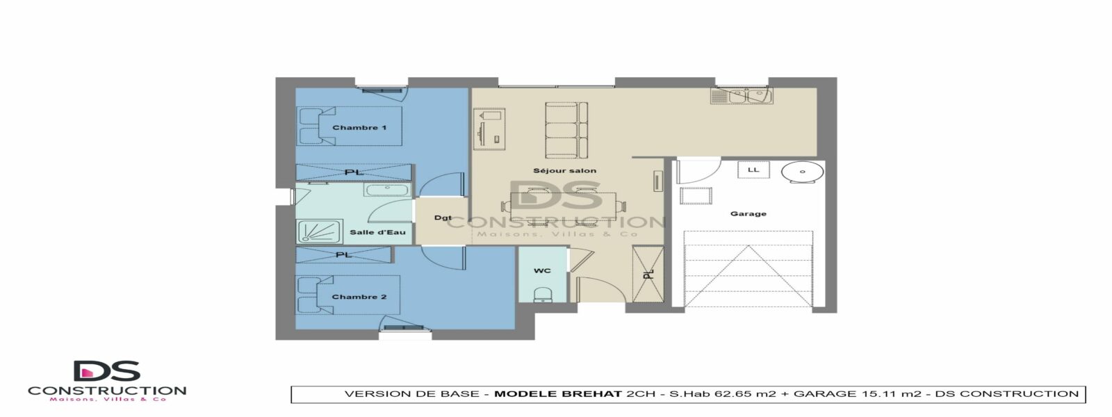
Découvrez le modèle Bréhat qui vous propose une maison compacte et bien pensée, offrant 62 m² de confort et de fonctionnalité. Avec ses deux chambres, cette maison est parfaite pour un couple ou une petite famille à la recherche d'un espace de vie harmonieux et pratique.
La cuisine ouverte, au cœur de la maison, se prolonge vers un séjour accueillant, même s'il n'est pas traversant, offrant tout de même une ambiance chaleureuse et conviviale. Chaque espace a été optimisé pour vous permettre de profiter pleinement de votre intérieur.
Un décroché en façade avant, au niveau des chambres, ajoute une touche de design unique à cette maison, la distinguant par une esthétique moderne et élégante. Le garage de 15 m² vient compléter l’ensemble.
Le modèle Bréhat se démarque par son architecture originale et son agencement réfléchi, alliant style et praticité pour répondre à vos besoins quotidiens.
Personnalisez et configurez cette maison, selon vos envies et besoins. N’hésitez pas à faire une demande de renseignements pour votre projet de vie.
Prix total se décomposant entre prix terrain et prix de construction, communiqué a titre indicatif et susceptible de modifications. Prix comprenant une maison aux normes RE2020 (classe énergétiques A), Construction sur vide sanitaire, Menuiserie blanches, Pompes à chaleur réversibles et chauffe-eau thermodynamique.
Le prix ne comprend pas, Adaptations au sol, Peintures, Décorations, Aménagements intérieures, Revêtements de sols des chambres, Cuisines, Aménagements extérieures, Frais de dossier et assurances en cas de recours à un prêt, Taxe d’aménagement et participations d’urbanisme, Frais d’abonnement aux réseaux et Taxes afférentes, Frais notariés, Etudes de sol, Raccordements et VRD. 
La société DS Construction s’efforce d’assurer une mise à jour régulière de ses annonces. Elle ne peut cependant être tenue pour responsable d’un éventuel défaut de mise à jour de ces annonces. Visuels non contractuels.
Simulation gratuite
Découvrez combien vous pouvez emprunter pour réaliser votre maison sur-mesure.
En quelques clics, obtenez une estimation de vos mensualités et de votre capacité d’emprunt pour concrétiser votre projet de construction.
Commencez votre simulation dès maintenant !
Agence de Poitiers
Vous aimerez aussi
 
				 
				 
				 
		 
						 
						 
						