• 88ab25eaae679af0df27a2b432f8fff0.jpg
  • b9599e8302f2136b1d97408ceec47dfe.jpg
  • 0adc5658e968f51b58ce5822527fa465.jpg
  • 527280ffdae07f62e9d133e2d78b5ddc.jpg
  • 07204264e83d21de60e053aa34de4854.jpg
5
140 m² Terrain de 761 m² 6 pièces 4 chambres 2 sdb / sde

Construction Maison + Terrain – Nouaillé-Maupertuis

306 680 €
Référence : Nouaillé-Maupertuis

Découvrez le modèle Bora Bora, une maison à étage de 140 m² qui allie élégance et modernité. Ce modèle offre quatre chambres, dont une située au rez-de-chaussée avec salle de bains privative, idéale pour les invités ou une chambre parentale.

Le rez-de-chaussée comprend également un bureau polyvalent et un cellier de 7 m² pour un rangement pratique. La pièce de vie généreuse de 61 m², ouverte sur la cuisine, crée un espace convivial et lumineux.

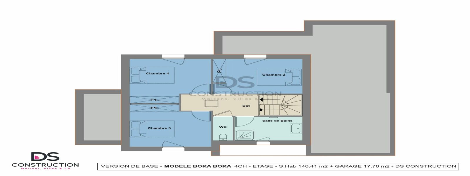
À l’étage, vous trouverez trois chambres supplémentaires, chacune équipée de sa propre salle de bains et WC, assurant confort et intimité pour tous les membres de la famille. Le garage de 17 m² ajoute une fonctionnalité utile pour le stationnement et le rangement.

Le modèle Bora Bora se distingue par son architecture contemporaine et élégante, avec un porche design à l'entrée qui apporte une touche moderne et raffinée.

Personnalisez et configurez cette maison, selon vos envies et besoins. N’hésitez pas à faire une demande de renseignements pour votre projet de vie.

Prix total se décomposant entre prix terrain et prix de construction, communiqué a titre indicatif et susceptible de modifications. Prix comprenant une maison aux normes RE2020 (classe énergétiques A), Construction sur vide sanitaire, Menuiserie blanches, Pompes à chaleur réversibles et chauffe-eau thermodynamique.

Le prix ne comprend pas, Adaptations au sol, Peintures, Décorations, Aménagements intérieures, Revêtements de sols des chambres, Cuisines, Aménagements extérieures, Frais de dossier et assurances en cas de recours à un prêt, Taxe d’aménagement et participations d’urbanisme, Frais d’abonnement aux réseaux et Taxes afférentes, Frais notariés, Etudes de sol, Raccordements et VRD.

La société DS Construction s’efforce d’assurer une mise à jour régulière de ses annonces. Elle ne peut cependant être tenue pour responsable d’un éventuel défaut de mise à jour de ces annonces. Visuels non contractuels.

Simulation gratuite

Découvrez combien vous pouvez emprunter pour réaliser votre maison sur-mesure.

En quelques clics, obtenez une estimation de vos mensualités et de votre capacité d’emprunt pour concrétiser votre projet de construction.

Commencez votre simulation dès maintenant !

Maison à construire 86340 Nouaillé-Maupertuis

Agence de Poitiers

05.86.16.05.86 1 rue du Hameau de Chaumont - 86000 Poitiers

Vous aimerez aussi