Construction Maison + Terrain – Vouneuil-sous-Biard
Découvrez le modèle Fidji, une maison à étage de 99 m² qui s’adapte aussi bien aux terrains étroits qu’aux parcelles plus larges, tout en maximisant l’espace et le confort.
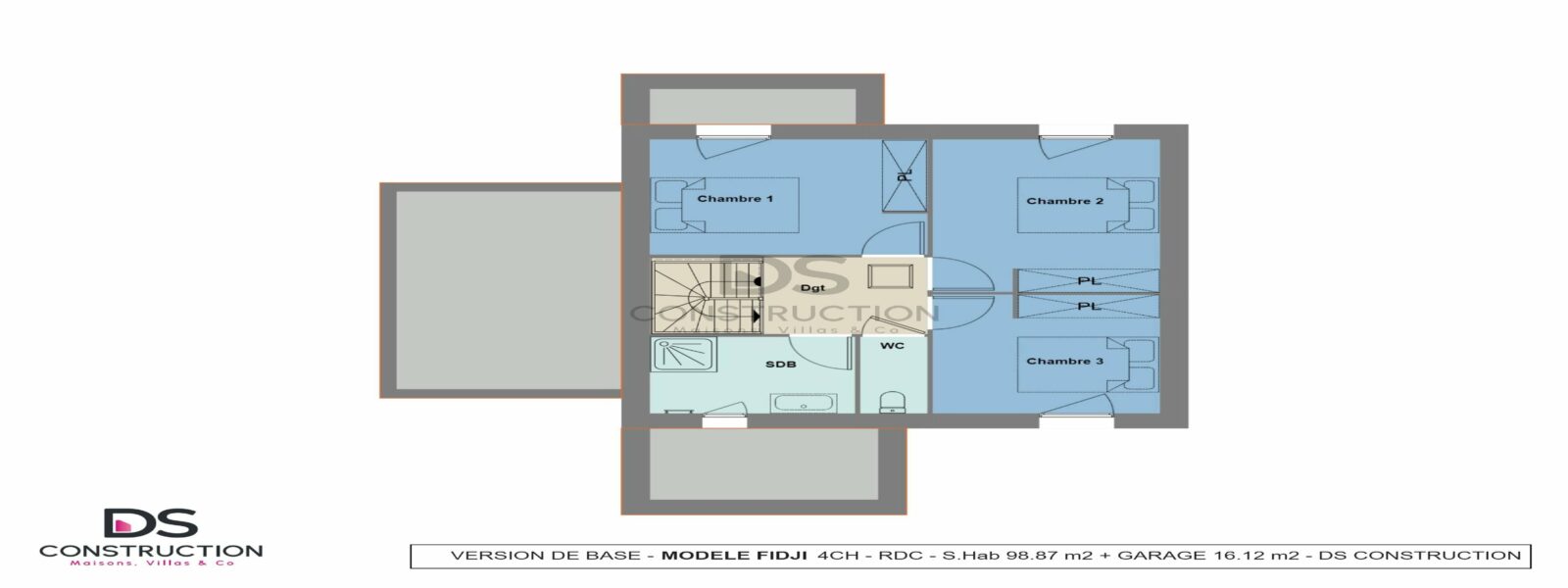
Le modèle Fidji propose quatre chambres, dont une suite parentale au rez-de-chaussée avec sa propre salle d'eau, garantissant confort et intimité. À l'étage, les autres chambres sont idéales pour les enfants ou pour aménager des espaces polyvalents.
Le rez-de-chaussée dispose également d'une cuisine ouverte sur un séjour spacieux, créant un environnement convivial pour les moments en famille. Un cellier attenant assure un rangement pratique pour une organisation optimale.
Le garage de 16 m² est intégré avec un décroché qui ajoute du caractère à la façade et au design moderne de la maison. Le modèle Fidji se distingue par ses multiples décrochés, qui apportent une touche esthétique unique tout en offrant un agencement fonctionnel et raffiné.
Personnalisez et configurez cette maison, selon vos envies et besoins. N’hésitez pas à faire une demande de renseignements pour votre projet de vie.
Prix total se décomposant entre prix terrain et prix de construction, communiqué a titre indicatif et susceptible de modifications. Prix comprenant une maison aux normes RE2020 (classe énergétiques A), Construction sur vide sanitaire, Menuiserie blanches, Pompes à chaleur réversibles et chauffe-eau thermodynamique.
Le prix ne comprend pas, Adaptations au sol, Peintures, Décorations, Aménagements intérieures, Revêtements de sols des chambres, Cuisines, Aménagements extérieures, Frais de dossier et assurances en cas de recours à un prêt, Taxe d’aménagement et participations d’urbanisme, Frais d’abonnement aux réseaux et Taxes afférentes, Frais notariés, Etudes de sol, Raccordements et VRD.
La société DS Construction s’efforce d’assurer une mise à jour régulière de ses annonces. Elle ne peut cependant être tenue pour responsable d’un éventuel défaut de mise à jour de ces annonces. Visuels non contractuels.
Simulation gratuite
Découvrez combien vous pouvez emprunter pour réaliser votre maison sur-mesure.
En quelques clics, obtenez une estimation de vos mensualités et de votre capacité d’emprunt pour concrétiser votre projet de construction.
Commencez votre simulation dès maintenant !