• 91b3ddc637f443cb537fdeacf1863a6d.jpg
  • afaa27f3dcb187d27dcce4113ce239dd.jpg
  • 097bf3711eb2295680baf0176dccff0b.jpg
  • a0fe1fb844d3dc59c11700c0054b6a77.jpg
  • 2af5a972dd8ad89d759ec41ca94b1c2b.jpg
5
144 m² Terrain de 967 m² 6 pièces 4 chambres 2 sdb / sde

Construction Maison + Terrain – Saint-Benoît

400 470 €
Référence : Saint-Benoît 2

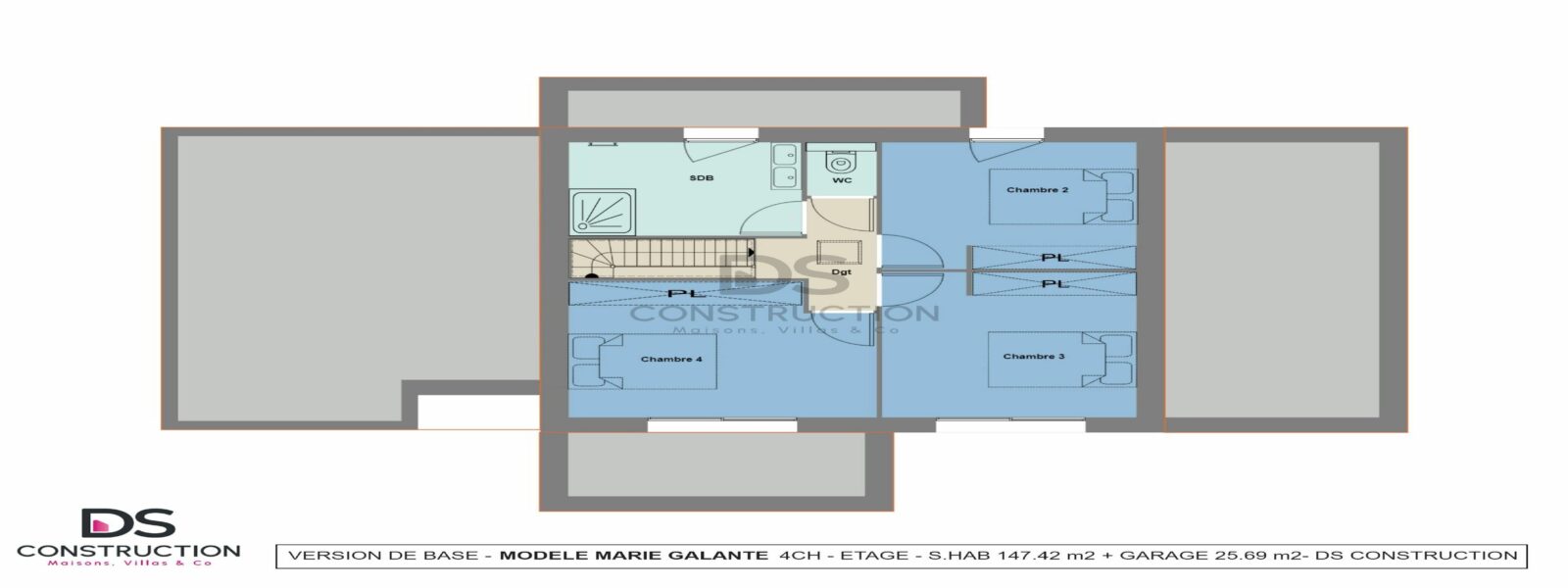
Découvrez le modèle Marie Galante, une maison à étage de 144 m², offrant une combinaison parfaite de confort et de style contemporain. Ce modèle propose quatre chambres, dont une au rez-de-chaussée, dotée d’une salle de bains privative, offrant une commodité supplémentaire pour les invités ou les membres de la famille.

Le rez-de-chaussée comprend également un bureau polyvalent et un cellier de 8 m², idéal pour le stockage et l’organisation. La pièce de vie spacieuse de 57 m², ouverte sur la cuisine, bénéficie d’une grande baie vitrée sur la façade avant, permettant de profiter pleinement de la lumière naturelle et de la vue sur l'avant du terrain si cela s’y prête.

À l’étage, les trois autres chambres sont équipées chacune de leur propre salle de bains et WC, garantissant confort et intimité pour chaque occupant. Le garage de 25 m² ajoute une fonctionnalité pratique pour le stationnement et le rangement.
Personnalisez et configurez cette maison, selon vos envies et besoins. N’hésitez pas à faire une demande de renseignements pour votre projet de vie.

Prix total se décomposant entre prix terrain et prix de construction, communiqué a titre indicatif et susceptible de modifications. Prix comprenant une maison aux normes RE2020 (classe énergétiques A), Construction sur vide sanitaire, Menuiserie blanches, Pompes à chaleur réversibles et chauffe-eau thermodynamique.

Le prix ne comprend pas, Adaptations au sol, Peintures, Décorations, Aménagements intérieures, Revêtements de sols des chambres, Cuisines, Aménagements extérieures, Frais de dossier et assurances en cas de recours à un prêt, Taxe d’aménagement et participations d’urbanisme, Frais d’abonnement aux réseaux et Taxes afférentes, Frais notariés, Etudes de sol, Raccordements et VRD.

La société DS Construction s’efforce d’assurer une mise à jour régulière de ses annonces. Elle ne peut cependant être tenue pour responsable d’un éventuel défaut de mise à jour de ces annonces. Visuels non contractuels.

Simulation gratuite

Découvrez combien vous pouvez emprunter pour réaliser votre maison sur-mesure.

En quelques clics, obtenez une estimation de vos mensualités et de votre capacité d’emprunt pour concrétiser votre projet de construction.

Commencez votre simulation dès maintenant !

Maison à construire 86280 Saint-Benoît

Agence de Poitiers

05.86.16.05.86 1 rue du Hameau de Chaumont - 86000 Poitiers

Vous aimerez aussi