Construction Maison + Terrain – Saint Benoît
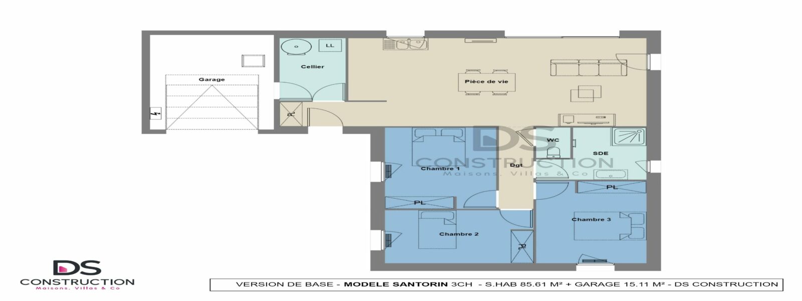
Découvrez le modèle Santorin de 85 m² en forme de L qui offre un agencement astucieux qui allie confort et fonctionnalité. Cette conception en L permet de dissocier parfaitement la partie nuit de l’espace de vie, offrant ainsi plus de tranquillité et d’intimité aux occupants.
La maison dispose de trois chambres confortables, regroupées autour de la salle de bains pour créer un véritable cocon dédié au repos. L’espace de vie se compose d’un séjour lumineux grâce à une grande baie vitrée. La cuisine ouverte, moderne et conviviale, se prolonge vers un cellier.
Le modèle Santorin inclut également un garage de 15 m², parfait pour stationner un véhicule et bénéficier d’un espace de rangement supplémentaire.
Ce modèle en L est parfait pour ceux qui recherchent une maison bien agencée, tout en profitant d’un intérieur baigné de lumière naturelle.
Personnalisez et configurez cette maison, selon vos envies et besoins. N’hésitez pas à faire une demande de renseignements pour votre projet de vie.
Prix total se décomposant entre prix terrain et prix de construction, communiqué a titre indicatif et susceptible de modifications. Prix comprenant une maison aux normes RE2020 (classe énergétiques A), Construction sur vide sanitaire, Menuiserie blanches, Pompes à chaleur réversibles et chauffe-eau thermodynamique.
Le prix ne comprend pas, Adaptations au sol, Peintures, Décorations, Aménagements intérieures, Revêtements de sols des chambres, Cuisines, Aménagements extérieures, Frais de dossier et assurances en cas de recours à un prêt, Taxe d’aménagement et participations d’urbanisme, Frais d’abonnement aux réseaux et Taxes afférentes, Frais notariés, Etudes de sol, Raccordements et VRD. 
La société DS Construction s’efforce d’assurer une mise à jour régulière de ses annonces. Elle ne peut cependant être tenue pour responsable d’un éventuel défaut de mise à jour de ces annonces. Visuels non contractuels.
Simulation gratuite
Découvrez combien vous pouvez emprunter pour réaliser votre maison sur-mesure.
En quelques clics, obtenez une estimation de vos mensualités et de votre capacité d’emprunt pour concrétiser votre projet de construction.
Commencez votre simulation dès maintenant !
Agence de Poitiers
Vous aimerez aussi
 
				 
				 
				 
		 
						 
						 
						