Construction Maison + Terrain – Chabournay
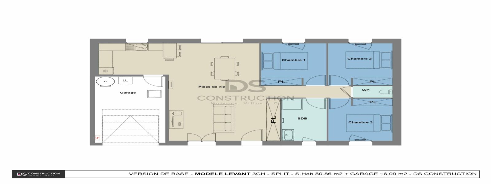
Le modèle Levant de 80 m² se distingue par sa forme rectangulaire simple et fonctionnelle, parfaitement adaptée aux besoins d'une famille. Il propose trois chambres confortables, idéales pour accueillir les membres de la famille ou aménager un espace de travail.
La cuisine ouverte sur le séjour favorise une ambiance conviviale et fluide, idéale pour les moments partagés en famille. Malgré l'absence de cellier, l’aménagement de cet espace reste optimisé pour un usage pratique et quotidien.
Le modèle comprend également un garage de 16 m², apportant un espace de rangement ou un stationnement supplémentaire. Avec son design rectiligne et épuré, cette maison allie simplicité et efficacité dans un cadre harmonieux.
Personnalisez et configurez cette maison, selon vos envies et besoins. N’hésitez pas à faire une demande de renseignements pour votre projet de vie.
Prix total se décomposant entre prix terrain et prix de construction, communiqué a titre indicatif et susceptible de modifications. Prix comprenant une maison aux normes RE2020 (classe énergétiques A), Construction sur vide sanitaire, Menuiserie blanches, Pompes à chaleur réversibles et chauffe-eau thermodynamique.
Le prix ne comprend pas, Adaptations au sol, Peintures, Décorations, Aménagements intérieures, Revêtements de sols des chambres, Cuisines, Aménagements extérieures, Frais de dossier et assurances en cas de recours à un prêt, Taxe d’aménagement et participations d’urbanisme, Frais d’abonnement aux réseaux et Taxes afférentes, Frais notariés, Etudes de sol, Raccordements et VRD. 
La société DS Construction s’efforce d’assurer une mise à jour régulière de ses annonces. Elle ne peut cependant être tenue pour responsable d’un éventuel défaut de mise à jour de ces annonces. Visuels non contractuels.
Simulation gratuite
Découvrez combien vous pouvez emprunter pour réaliser votre maison sur-mesure.
En quelques clics, obtenez une estimation de vos mensualités et de votre capacité d’emprunt pour concrétiser votre projet de construction.
Commencez votre simulation dès maintenant !
Agence de Poitiers
Vous aimerez aussi
 
				 
				 
				 
		 
						 
						 
						